Лимассол возглавил рынок элитной недвижимости Кипра в первой половине 2025 года
BELLA ARIA RESIDENCE Лимассол
- Этажей всего: 4
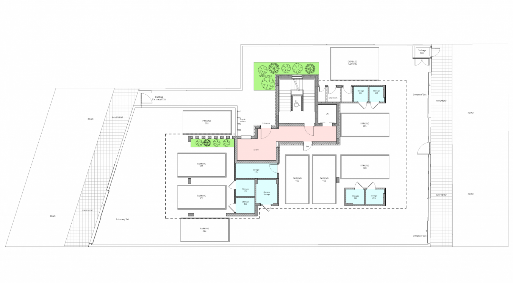
- Площадь земельного участка: 553 м²
- Парковка: 9
- Вид: на море и город
Описание
Новый жилой проект от Vizus Group находится в самом сердце Лимассола, в районе Меса Гетония. Это стильное семиквартирное здание идеально сочетает городскую энергию и комфорт повседневной жизни, предлагая всё, что нужно для полноценного проживания или выгодной инвестиции.
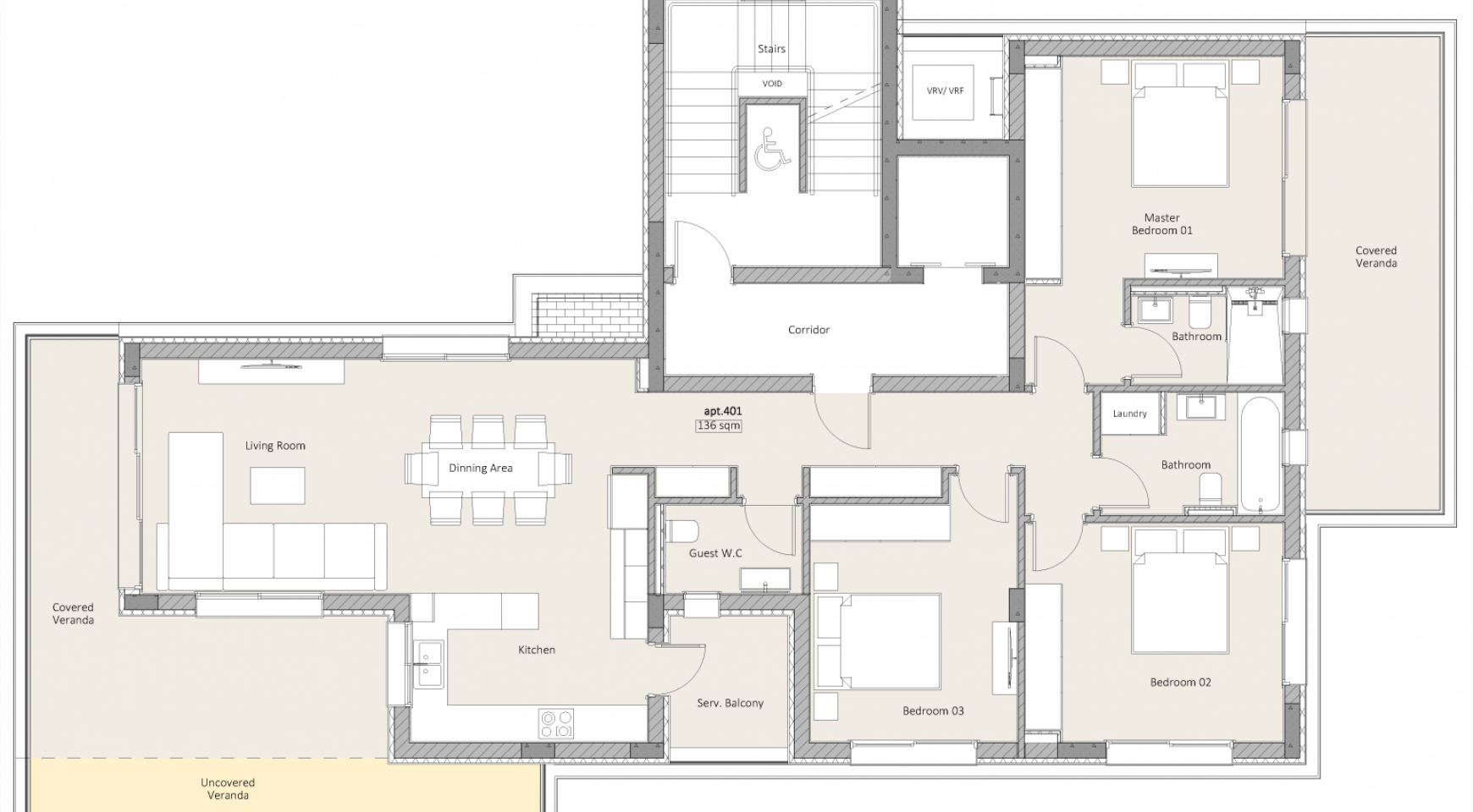
В здании представлены просторные 1-, 2- и 3-спальные апартаменты с продуманными планировками, просторными балконами, личным парковочным местом и кладовой.
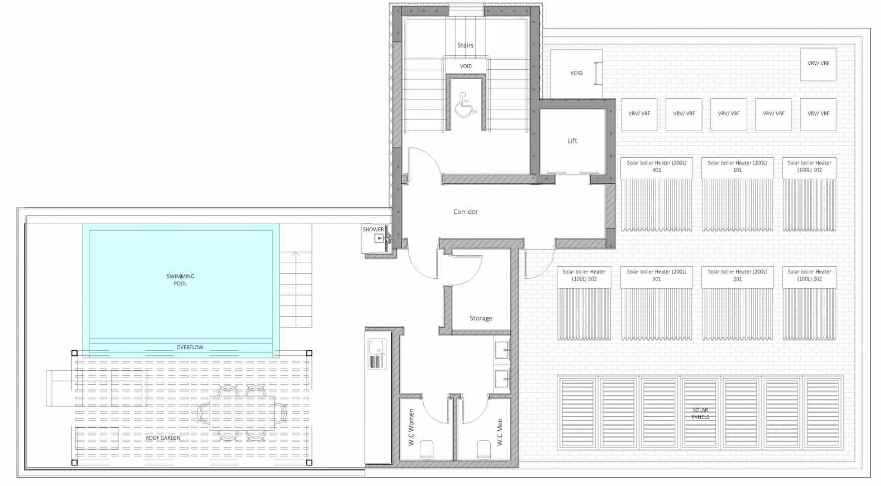
Главная изюминка проекта - панорамная терраса на крыше, где находится общий бассейн и зона барбекю с видом на Средиземное море. Идеальное место для отдыха, встреч с друзьями и наслаждения закатами над городом.
Текущая стадия реализации проекта: Планирование
Отказ от ответственности
Заявление на получение разрешения на проект Bella Aria Residence подано и в настоящее время ожидает официального одобрения. Все планы, чертежи и визуализации фасадов могут быть изменены как по усмотрению застройщика, так и в соответствии с требованиями соответствующих разрешительных органов.
| № квартиры | Этаж | Спальни | Ванные | Внутренняя крытая площадь, м2 | Крытая веранда, м2 | Общ. крытая площадь, м2 | Открытая веранда, м2 | Парковочное место | Наличие квартир |
|---|---|---|---|---|---|---|---|---|---|
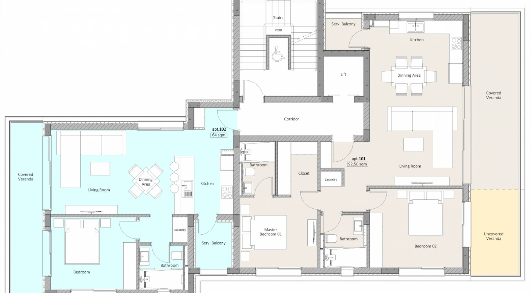
| 101 | 1 | 2 | 2 | 92.5 | 23.5 | 116 | 10.5 | 1 | По запросу |
| 102 | 1 | 1 | 1 | 64 | 18.5 | 82.5 | 1 | По запросу | |
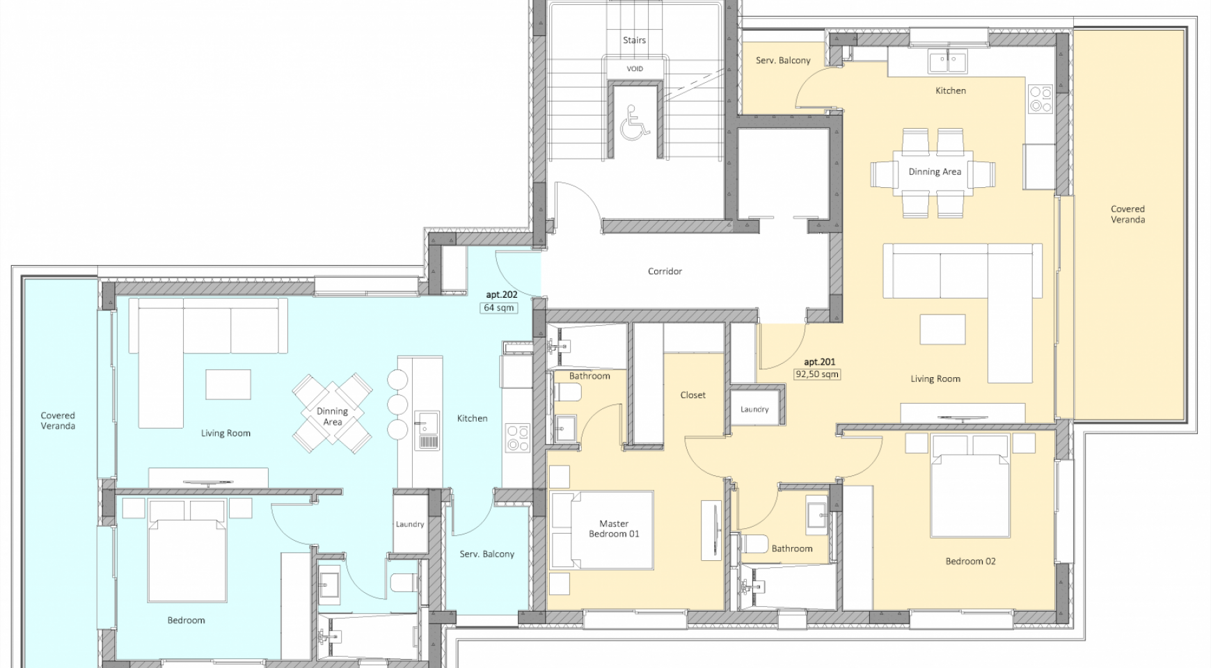
| 201 | 2 | 2 | 2 | 92.5 | 23.5 | 116 | 1 | По запросу | |
| 202 | 2 | 1 | 1 | 64 | 18.5 | 82.5 | 1 | По запросу | |
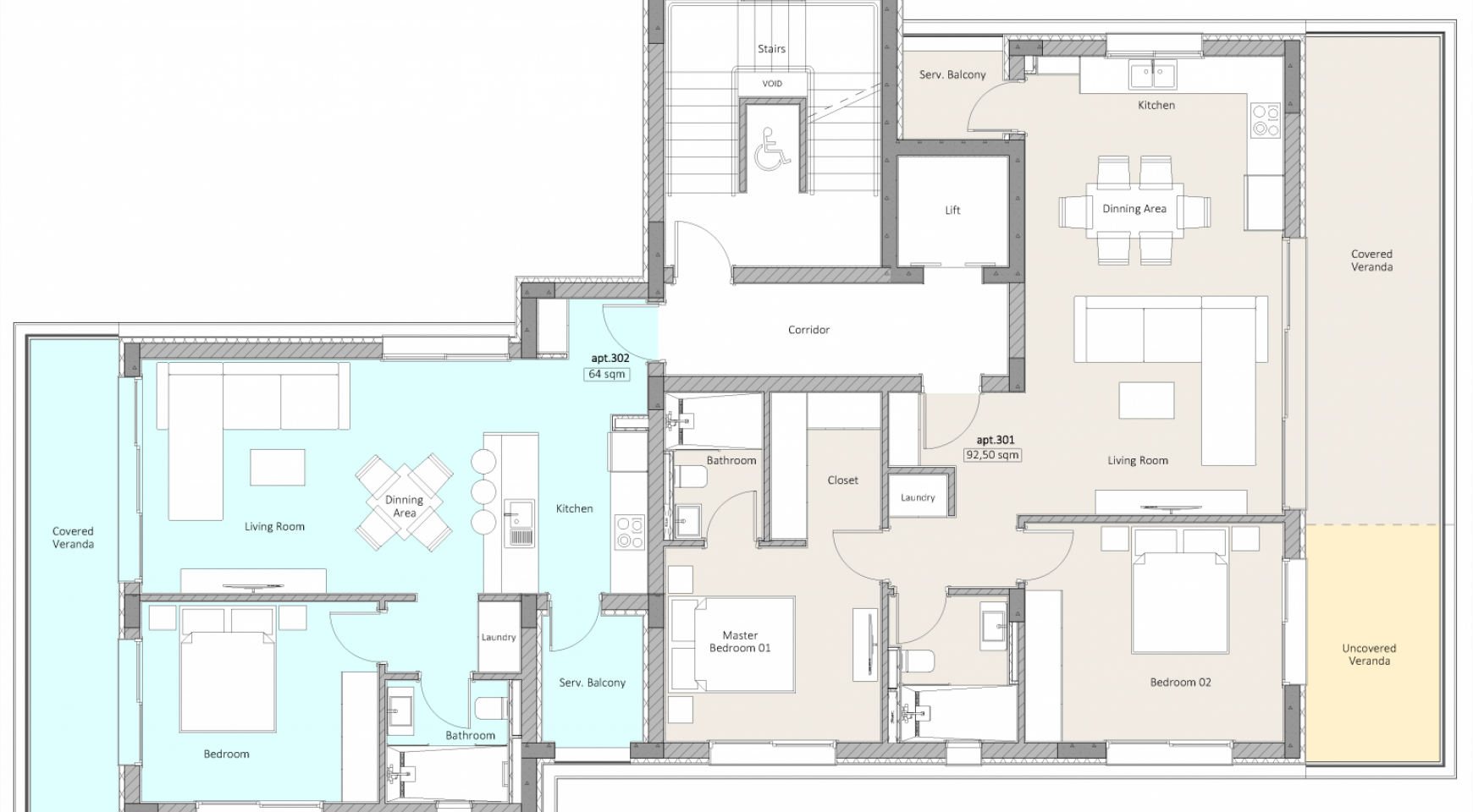
| 301 | 3 | 2 | 2 | 92.5 | 23.5 | 116 | 10.5 | 1 | По запросу |
| 302 | 3 | 1 | 1 | 64 | 18.5 | 82.5 | 1 | По запросу | |
| 401 | 4 | 3 | 3 | 136 | 48.2 | 184.2 | 11.3 | 2 | По запросу |